Edición del plano de pórticos
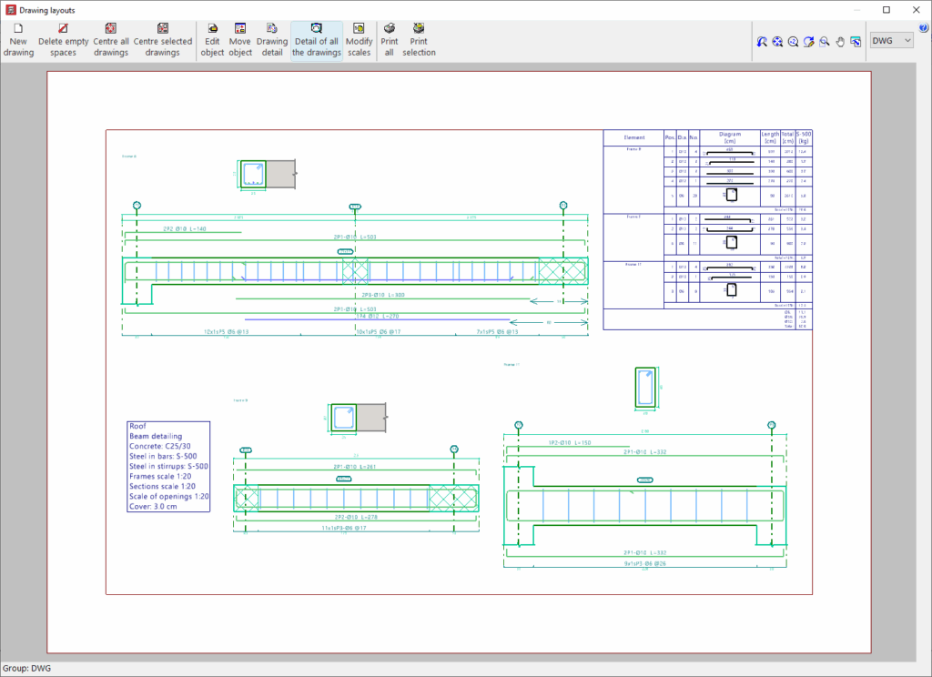
El plano de pórticos ofrece información detallada sobre las secciones y armados de las vigas y pórticos de la estructura. Este plano puede obtenerse tras realizar el cálculo de la obra.
La configuración de los planos se realiza al añadir o editar un plano usando las herramientas de la ventana "Selección de planos", que aparece al utilizar la opción "Planos" de la barra de herramientas superior o del menú "Archivo" de la interfaz general.
En el caso de un plano de tipo "Plano de pórticos", las opciones de edición son las siguientes:
Selección de pórticos
En este apartado se eligen los pórticos que se desean representar en los planos. Estos pueden ser:
- Todos los grupos
Genera los planos de los pórticos de todos los grupos de la obra. - Selección de grupos
Genera los planos de los pórticos situados entre los grupos seleccionados en los desplegables "Hasta el grupo" y "Desde el grupo", ambos incluidos. - Selección por etiquetas
Genera los planos de los pórticos situados entre los grupos seleccionados en los desplegables y que estén asociados a las "Etiquetas" indicadas. Las etiquetas se gestionan desde el panel "Etiquetas", dentro del menú "Grupos" de la pestaña "Entrada de vigas". - Selección en grupos
Genera los planos de los pórticos seleccionados uno a uno en la ventana emergente "Selección de pórticos".
Configuración
En este apartado se eligen los pórticos que se desean representar en los planos. Estos pueden ser:
- Escala
Define la escala de la sección longitudinal de los pórticos. - Esc.sección
Define la escala de la sección transversal de los pórticos. - Escala detalle huecos
Define la escala de los detalles de los huecos abiertos en las vigas. - Despiece armados (opcional)
Activando esta casilla se añaden marcas de posición (por defecto, la letra P) que aparecen en los textos de armado y permiten detallar el despiece de los armados de los pórticos. Estas marcas de posición, acompañadas de un número, referencian la barra o barras sobre las que se sitúan con respecto a una tabla que el programa coloca en la esquina superior derecha del plano.
Si no se quiere realizar este despiece detallado, no se debe activar esta casilla. Aunque no se active, se podrá obtener igualmente el resumen de medición.- Ejemplo
A modo de ejemplo, en un plano de pórticos, el texto 4P5Ø20(720) indica que existen 4 barras de calibre 20 mm en posición 5 y de 720 cm de longitud.
Si se busca en la tabla de despiece la posición 5, ésta indica el número de barras en esa posición, la longitud de patilla (si la tiene), la longitud recta, el total de cada barra, la longitud total del grupo y, finalmente, el peso del grupo.
- Ejemplo
- Resumen de medición (opcional)
Activando esta casilla se incorpora una tabla con el resumen de medición de los armados de los pórticos en el plano. Se incluye información del el total de longitudes y pesos por cada diámetro, así como el peso total de todos los armados.
Las opciones "Configurar las referencias para las posiciones de las barras" y "Configurar" permiten realizar los siguientes ajustes adicionales:
Configurar las referencias para las posiciones de las barras
Si se activa la casilla "Despiece armados" para especificar que se desea el despiece de las barras, cada barra está identificada con un número correspondiente a la posición en la tabla. Se puede indicar un prefijo y un sufijo para colocar antes y después de dicho número.
Estos rótulos se pueden configurar en la ventana que aparece al pulsar sobre "Configurar las referencias para las posiciones de las barras":
- Prefijos y sufijos
Permite definir los prefijos y sufijos utilizados en la composición de los rótulos:- Posición (Ejemplo: prefijo "P", sufijo "-")
- Longitud (Ejemplo: prefijo "L=")
- Separación (Ejemplo: "c/")
- Orden de los rótulos
Permite elegir el orden de rótulos entre los dos esquemas siguientes:- 3P17-Ø16 L=250 3P17-Ø16c/25
- P17-3Ø16 L=250 P17-3Ø16c/25
Significado: 3 barras de diámetro 16 mm en la posición 17, con longitud 250 mm / separadas cada 25 cm.
- Tamaño de los textos
Define el tamaño de los textos de "Cabecera" y de las "Filas". - Despiece
En este apartado se selecciona si se desea "Detallar el despiece" o "Detallar las longitudes de patilla y la parte central de la barra", en cuyo caso se puede opcionalmente "Indicar longitudes de patilla".
Opciones de la ventana "Configurar"
Al pulsar sobre el botón "Configurar" se abre una ventana con tres pestañas que albergan diferentes opciones de configuración.
Así, en la pestaña "Opciones de armado", el programa ofrece las siguientes opciones de configuración de los armados longitudinales de las vigas:
- Dibujar las barras dentro de la viga
- Acotar patillas de negativos
- Acotar patillas de armadura de montaje
- Acotar longitud de solapes de armaduras en apoyos
- Dibujar las armaduras de negativos sobre la viga
- Dibujar más alejadas las barras más largas
- Indicar la longitud total de las armaduras de negativos pasantes (Izquierda / Derecha / Ambas)
- Rotular la distancia de porta-estribos y positivos a eje
- Rotular textos de armadura de positivos por debajo de la barra
- Rotular armaduras de montaje tipificadas
Después, en la pestaña "Opciones de estribos", el programa ofrece las siguientes opciones de configuración de los armados transversales de las vigas:
- Dibujar los estribos dentro de la viga
- Detalle del estribo (Sin detalle / Debajo de la sección / A la derecha de la sección)
- Indicar el número de estribos en el intervalo
- Escribir el acumulado de estribos en el detalle del corte
- Acotar estribos a caras exteriores
- Acotación (las posiciones de las barras del estribo / el intervalo de estribado)
Finalmente, en la pestaña "Opciones generales", el programa ofrece las siguientes opciones de configuración general de los planos de pórticos:
- Dibujar secciones al lado del pórtico
- Numeración de medición por cada pórtico
- Rotulación del tipo de despiece
- Rotular la escala junto al nombre de pórtico y secciones
- Dibujar los forjados a los lados de la viga en las secciones transversales
- Reducir la separación entre los elementos de dibujo
- Agrupar los pórticos con la misma geometría y los mismos armados
- Disposición de referencias en pórticos agrupados (En horizontal / En vertical)
| Nota: |
|---|
| Para optimizar el espacio utilizado en los planos, se puede situar el "Detalle del estribo > A la derecha de la sección" (en lugar de "Debajo de la sección") y marcar la opción "Reducir la separación entre los elementos de dibujo". Esto permite compactar los elementos del dibujo e incluso reducir el número de hojas necesarias para albergar los planos de los pórticos seleccionados. |







