Edición de pilares sobre tabla
En el editor de pilares se pueden consultar los esfuerzos, el dimensionamiento y las comprobaciones realizadas automáticamente por el programa en todos los pilares de la obra y en todos sus tramos. Además, se pueden organizar y redimensionar las agrupaciones de pilares, modificar las armaduras o los perfiles metálicos utilizados y comprobar todas las modificaciones realizadas, generando después listados de comprobaciones detalladas.
La ventana presenta dos pestañas, "Edición sobre tabla" y "Edición sobre cuadro de pilares". Cualquiera de estas interfaces de edición permite realizar las consultas y modificaciones necesarias sobre los pilares. Se diferencian en las posibilidades de edición y revisión de resultados y en la vista sobre la que se realizan. Se puede elegir cualquiera de ellas, ya que la información está vinculada.

La pestaña "Edición sobre tabla" muestra la información en cuatro secciones, que se detallan a continuación:
- Agrupaciones
- Vista en planta de pilares
- Edición del armado
- Resumen de comprobaciones
Agrupaciones
En primer lugar, la sección "Agrupaciones", en el cuadrante superior izquierdo, permite seleccionar entre los diferentes conjuntos o agrupaciones de pilares que el programa ha creado durante el cálculo. Los pilares de una misma agrupación comparten la misma geometría de sección, número de plantas y armado.
En esta tabla se marca si la agrupación se ha "Revisado", o si se ha "Bloqueado", en el caso de que no se desee permitir ningún cambio. Se indica, además, si la agrupación "Cumple" o no las especificaciones de la normativa seleccionada, y las "Plantas" que atraviesa.
Vista en planta de pilares
La sección "Vista en planta de pilares", en el cuadrante inferior izquierdo, muestra una visualización esquemática en planta de la distribución de todos los pilares del modelo. Se rodean con una circunferencia magenta aquellos que pertenecen a la agrupación seleccionada.
Edición del armado
La sección "Edición del armado", en el cuadrante superior derecho, constituye el área principal de edición.
Se muestran las plantas que atraviesan los pilares de la agrupación seleccionada, indicando su cota y la "Dimensión" de cada tramo. En el caso de pilares de hormigón armado y mixtos, se muestra el "Armado longitudinal" obtenido en el cálculo, tanto de "Esquinas", como de la "Cara X" y de la "Cara Y", y el "Armado transversal", incluyendo la definición de los "Cercos" y su "Separación".
Se muestra también la "Cuantía geométrica" [As/Ac (%)], y una marca de verificación del tramo para indicar si se cumplen o no todas las comprobaciones efectuadas sobre el mismo.
El programa permite la edición del pilar sobre esta tabla pulsando sobre cualquiera de las celdas de las columnas mencionadas y modificando los datos, escribiéndolos directamente o seleccionándolos en los distintos desplegables.
Para editar las "Longitudes de anclaje y de solape" de las armaduras, se pulsa sobre el botón situado a la derecha del armado longitudinal de la cara Y. Se puede modificar el "Porcentaje de barras solapadas". Si el solape es igual al 50 % de caras opuestas o de barras alternas, se puede aplicar un "Desplazamiento" al mismo.
Pulsando sobre la celda donde se dibujan los "Estribos", se accede a la edición de los mismos. En la parte superior se define el diámetro de los "Cercos" y, opcionalmente, el "Diámetro de las ramas". Abajo, el programa permite añadir una determinada disposición de estribos y ramas entre los disponibles. Se puede utilizar la opción "Seleccionar una disposición" para precargar una configuración de estribos y ramas desde las tablas de armado.
Resumen de las comprobaciones
Al seleccionar cualquier fila en la tabla de "Edición del armado" correspondiente a un tramo de pilar, la sección "Resumen de las comprobaciones", en el cuadrante inferior derecho, muestra la información de las comprobaciones más relevantes de dicho tramo.
Para cada "Pilar", se indica la "Posición" de las secciones de comprobación del tramo, ya sea en la "Cabeza" o en el "Pie" del mismo.
Las diferentes columnas muestran los valores numéricos calculados para las "Comprobaciones" más importantes, incluyendo el "Coeficiente de aprovechamiento" máximo de la sección y la "Combinación" de hipótesis en la cual se da.
Los "Esfuerzos pésimos" son aquellos con los que se ha armado la sección, mientras que los esfuerzos de "Referencia" son los obtenidos directamente de la resolución del cálculo matricial y previos a operaciones como la amplificación de momentos.
Más a la derecha se muestra el "Diagrama de equilibrio de la sección para la combinación seleccionada" y la "Lista de comprobaciones para todas las combinaciones".
Pulsando sobre el último botón, se accede al listado de "Comprobaciones" del tramo de pilar seleccionado. Aquí se visualizan una a una todas las comprobaciones efectuadas, incluyendo una marca con su "Estado". En la parte inferior, se indica el punto o el artículo de la normativa verificada, así como el desarrollo del cálculo que se ha seguido en cada una de ellas. Para obtener un informe detallado de todas las comprobaciones, se selecciona "Ver el listado completo". La información se puede "Exportar" en diferentes formatos, "Compartir" o "Imprimir".
Otras opciones
La parte superior de la ventana "Edición de pilares" ofrece una serie de herramientas con diferentes funciones:
- En primer lugar, se puede "Buscar un pilar" indicando su referencia o pulsar en "Reordenar todo" para reordenar las agrupaciones de pilares por su referencia.
- Dentro de la sección "Rearmar", las opciones "Agrupación", "Armadura transv. agrupación", "Todo", o "Armadura transv. todo" permiten que el programa vuelva a obtener automáticamente el armado de las agrupaciones de pilares seleccionados tras efectuar cualquier modificación utilizando las tablas de armado disponibles.
- Dentro de la sección "Resultados", la opción "Comprobación" permite obtener el listado de comprobaciones de estados límite últimos de todos los tramos del pilar seleccionado. Es posible "Exportar", "Compartir" o "Imprimir" esta información al igual que con los listados de comprobaciones parciales mostrados anteriormente.
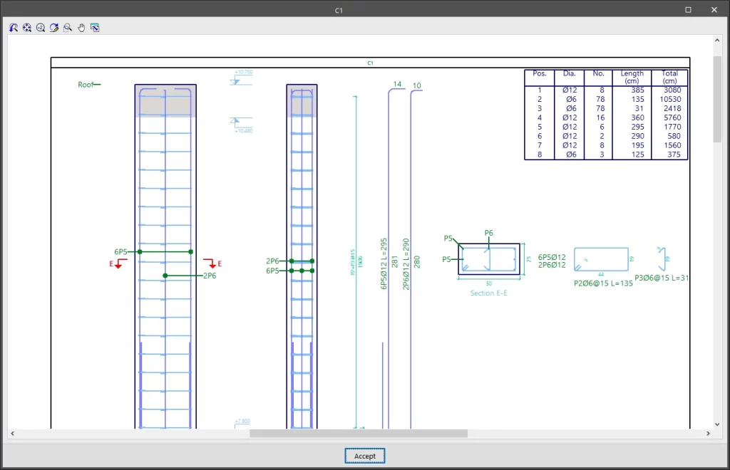
- A través del "Despiece" se accede a una vista del pilar con la disposición detallada y acotada de todos los armados, incluyendo sus mediciones en una tabla de cuantías.
- Por su parte, la "Vista 3D" muestra la sección y el armado del pilar en un entorno totalmente tridimensional.
- La opción "Esfuerzos" permite consultar los diagramas de axiles, momentos, cortantes y torsores del pilar seleccionado. Para ello, se seleccionan las plantas y los esfuerzos visibles, así como su "Escala". Se puede elegir la "Hipótesis" o una de las "Combinaciones" deseadas en los desplegables. Después, pasando el puntero por los diagramas, el programa mostrará la información de los valores de los esfuerzos para la sección situada a la cota indicada y para la hipótesis o combinación seleccionada.
- La opción "Mostrar las zonas de densificación" muestra u oculta en la tabla "Edición del armado" los distintos tramos de estribado que puede tener un pilar de hormigón o mixto, dependiendo de las opciones consideradas en el cálculo. Esta opción no permite añadir más zonas de densificación diferentes. Para ello, hay que acudir a la pestaña "Edición sobre cuadro de pilares".
- Finalmente, la opción "Actualizar" permite, tras la realización de algún cambio, la actualización de los resultados de la comprobación.
| Nota: |
|---|
| Si se realizan modificaciones importantes en la sección de los pilares, se recomienda efectuar un cálculo completo de la obra, ya que puede haber variaciones importantes en los esfuerzos a los que están sometidos. |












